JULY 2026 (12 month) PLAN AHEAD FOR NEXT YEAR
6 ROOMS (single occupancy - 4 single/2 double)
CURRENT tenants year ends 30 Jine 2026
ALL female Oxford University PhD/Masters - met on moving in and now live, eat and socialise as a household. The layout and size of the property encourages the friendly environment.
🚪🚶♂️Whats on your doorstep?
🎓St Hilda's / Merton / Magdalen / All Souls / New Colleges & Edward Hall
ALL University sports
🏟️University athletics track
🎾Tennis courts
🏉⚽️University rugby/football pitch
🛶University boat club
🏏Christchurch sports field
WORK LOCATIONS
👔 Oxford Business Park
🧪 Oxford Science Park
🧫 Milton Park quick link
🔬Harwell science bus stop
ENTERTAINMENT LOCATIONS
🎸Oxford O2
🎭The Glee comedy club
🛒Tesco/Sainsbury's/Boots
✈️Rectory Road cut through to St Clements & London buses
🏥 Churchill/ Warnford/ Nuffield and JR all the shortcut through from the Cowley Road or direct buses from St Clements
🎡Close to the Plain just over the bridge
🏫Magdalen College & Merton College
In just three words - A GREAT LOCATION
ADVERTISED RATE FROM 1st JULY 2026 to end JUNE 2027 (12 month) or shorter PREMIUM RATE COLLEGE term 1st OCT 2026 to JUNE 2027 (academic year)
🫵🏻VIEWINGS book for a WhatsApp tour or face-to-face. With or without buddies - get in touch
🏠 Room by room HMO house rental with bills (1mnth in advance/ 1mnth deposit to rent review guidance)
⚖️ Although NOT using an agent - references will be requested and contacted for both character and previous landlord and full right to rent and affordability checks as expected. Gunarantors if deemed necessary
✅🧾Bills Included
❌🧾 council tax not included . N.B. 0️⃣ as Student Household
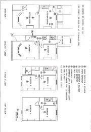
👀Look at the floor plan and photos to see they are sizeable rooms.
📍Great location near central Plain and both University sites.
🚎Reliable bus service🚏bus stop just around corner passing by including new Science Transit Shuttle to Harwell plus all Cowley road facilities and entertainment on your doorstep. Look at location map and see for yourself. Placement students great location.
🧹🪣 Fortnightly clean included
🛋️Large size communal sitting room
📺 55" TV with firestick. Relaxing and homely environment for after study/work.
🛜virgin superfast 1Gb broadband
🧺 wi-Fi enabled 1600 spin washing machine and separate Wifi dryer for modern laundry solution with updates to your smart phone.
🍽️ spacious kitchen/diner. Table and chairs to be able to enjoy symutaneous eating.
🚽🚿Two shower bathrooms and separate WC (layout floor plan attached).
🏡 Large patio garden sunny, south facing with garden furniture and table included - solar night lighting.
🧺🍴🫙🧫Fully equipped kitchen with all electrical goods, 2 fridges and a freezer, combi microwave and separate oven and hob. All cooking utensils and crockery necessary + washing machine & dryer.
6️⃣✖️🛌All bedrooms similarly furnished with bed, double wardrobe, desk and office chair, bookcase, five-drawer chest of drawers with mirror, message board and coat stand. Everything you need.
🧯For tenant safety and security there is a hard wired fire alarm with sensors in every room and the burglar alarm to reduce insurance costs.
🧾 HMO license renewed to 2029.
🌍 EPC Band C to 2034
🤑 Council Tax Band E. 👌🏻 students £0 (approx£40pp/pcm not inc.)
✍️Get in touch for more information. No agent fees etc as private landlord. Get booked in for a WhatsApp or face to face tour as a group with the current tenants/landlord.💬
❌🚭
❌🐾
Rent:£790 MonthProperty let to individuals and groups
Tenancy Fees Information
6 Bedrooms (3 Available)Available NowSecurity Deposit:£790 - £890 Per Tenancy
Advert Ref:OXSUP10243866
No. of bedrooms available36Contract Length (weeks):43
Available:
Now
£790FromPer person per month£790.00 PP/Per Month (price for comparison)
Click for a full range of prices
Security Deposit:£790 - £890 Per Tenancy
Tenancy Fees Information
Tenancy Deposit Scheme:My Deposits InsuredCouncil Tax Band:E
Rent Includes
ElectricityGasWaterBillsInternetCleaningUtility Cap Applies
| Description | Price | Frequency | Price for comparison (per day)* |
| Rooms 2-4 (guidance) | £790 | Per person per month | £25.97 |
| Rooms 1 & 5 (guidance) | £890 | Per person per month | £29.26 |
| Whole Property | £4720 | Per room per month | £155.18 |
| Whole Property | £4720 | Per room per month | £155.18 |
* Prices per day are based on 365 days in a year. Whole property prices per day based on a single occupant / family unit
Property Details:
Property Type:
Whole Property, Single study bedroom
Area:
East Oxford (OX4)
Town:
Oxford
Total number of bedrooms:
6
Max Occupancy:
6
Number of habitable floors:
4
Heating:
Gas Central, Communal Heating System, Gas Combi Boiler, Instant Hot Water, Total Control Heating
wooohoo
Shared Facilities:
- Access to Hall
- Accessible Rooms
- Bathroom
- Bicycle Storage
- Broadband Internet
- Cafe
- Common Room
- Cooking Facilities
- Fridge Freezer
- Games Area
- Garden
- Gym
- Lounge
- Microwave
- Onsite Maintenance
- Onsite Management
- Parking
- Shower
- Telephone
- Tumble Dryer
- Use of Library
- Vending Machine
- Washing Machine
Suitable For:
- Academic
- Children
- Couples
- Family
- Graduates
- Individuals
- Pets
- Smokers
- Staff
- Undergraduates
- Visitors
Sustainable Living:
- Compost Bin
- Double Glazed Windows
- Energy Efficient Boiler
- Energy Efficient Domestic Appliances
- Energy Efficient Light Bulbs
- Heating Timer and/or Programmer
- Insulation
- Internal Recycle Bin
- Low Flow Shower
- Renewable Energy for Electricity
- Renewable Energy for Heating
- Room Thermostat
- Smart Meter
- Solar Panels
Other Facilities:
EPC Band C to 2034 - no rent reform issues
Safety & Security:
- Burglar Alarm
- Smoke Alarm(s)
Mobility
- Adapted Bathroom
- Adapted Kitchen
- Adapted Toilet
- Allergy Free
- Ground Floor Bathroom
- Ground Floor Bedroom
- Ground Floor Bedroom with Wheelchair Access
- Ground Floor Toilet
- Ground Floor Toilet with Wheelchair Access
- Level Access Throughout
- Level Entry Shower / Wet Room
- Mid Height Sockets / Switches
- Moveable Access Ramp
- No Difficult Outside Steps
- Permanent Access Ramp
- Shower / Wet Room
- Shower Over Bath
- Shower Seat
- Visual / Vibrating Fire Alarm
- Wheelchair Friendly Doors
Electrical Certified
Electrical Certificate Expires14/07/2028
Gas Certificate
Gas Safety Certificate Expires24/01/2026
HMO Certified
HMO Expires16/04/2029
| ENERGY EFFICIENCY RATING |
| |
Actual |
Poss |
(92+)A
(81-91)B
(69-80)C
(55-68)D
(39-54)E
(21-39)F
(1-20)G
|
71
|
84
|
Please mention Studentpad when booking your student accommodation